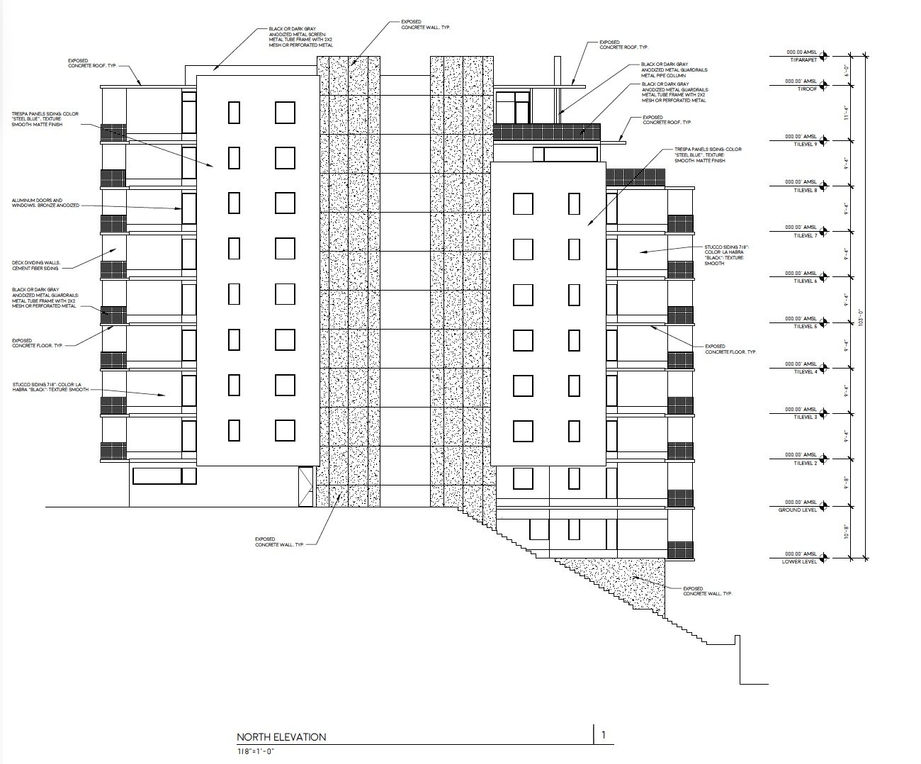
A new luxury 52 unit apartment project conveniently located across the street from the state-of-the-art UC San Diego Hospital complex and just two blocks from Mercy Hospital.

This prime location is perfect for nurses and medical residents seeking easy access to their workplaces. Additionally, residents will appreciate the vibrant Hillcrest neighborhood, renowned for its diverse restaurants and lively bars, making it an ideal spot for younger professionals to socialize and unwind.

3rd Ave.

 
Previous
Previous

Stetson North Park

Next
Next

Cache Meadows